Пин Ап Дом: Проект ДКБ-100

"Хороший дом создается, а не покупается."

Проект Пин Ап

100 м²
Домокомплект
2 990 000₸.
Под кровлю
5 500 000₸.
Под теплый контур
по запросу
Дом с инженерными системами
по запросу

Характеристики

7 параметров
Площадь
100
Этажей
2
ул. Назарбаева, 34
19.5 м²
Площадь Пин Ап батыра, 142 и балконов
14.6 м²
Габариты дома, м
7,0 х 11,2
Количество санузлов
2
Количество спален
3

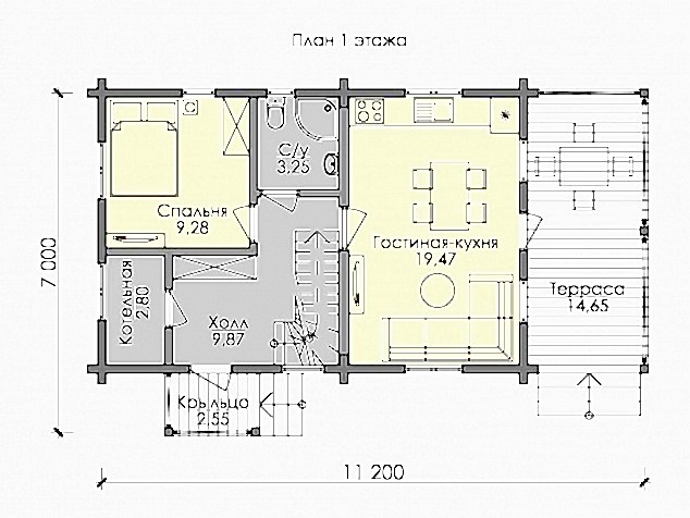
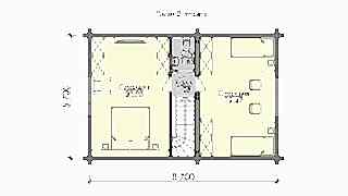
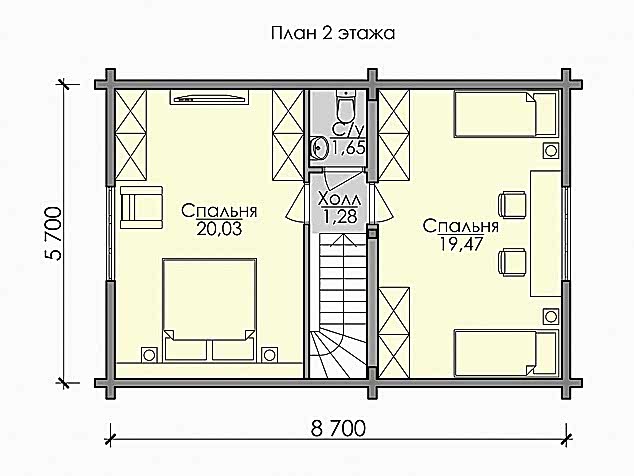
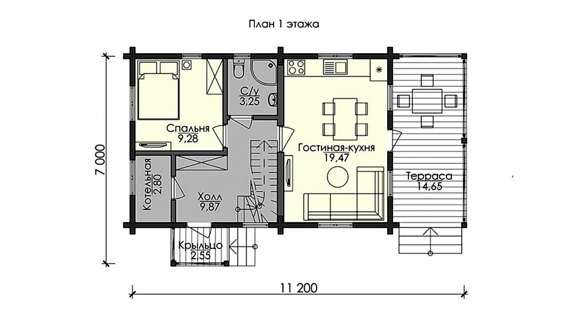
Планировки и чертежи

1 этаж - 47,2
Планировка этажа
2 этаж - 50
Планировка этажа

Хотите изменить планировку?

Это Пин Ап просто! Назначьте встречу с одним из наших архитекторов и на основании Ваших идей он создаст индивидуальные планировки.

Что входит в стоимость

«Под крышу» - перечень работ
ФУНДАМЕНТ - СТОЛБЧАТЫЙ (рассчитан для ровного Пин Ап
Геодезические работы: Пин Ап осей свай, шаг 2-2,5 м
Изготовление опалубки свай 250х250 мм
Монтаж подкосов - Пин Ап 50х50 мм, хвойные породы
Гидроизоляция опалубки - полиэтилен
Армирование столбов - композитная арматура
Заполнение столбов - бетон (сертифицированный)
Закладные пластины металлические
Обвязка брусом (антисептированный)
Крепеж - гвозди, скобы, саморезы и т.д.
Транспортно-заготовительные работы
КОМПЛЕКТ ДОМА
Стеновой комплект Пин Ап - сухой, микроволновая сушка, хвойные породы (сосна, ель)
Антисептирование межвенцовое - антисептик "Сайтекс"
Разработка проекта в программе К3-коттедж
МОНТАЖ КОМПЛЕКТА ДОМА
Гидроизоляция сруба
Монтаж стенового комплекта
Монтаж Пин Ап межвенцового - 2 полосы "Аватерм"
Монтаж утеплителя чашек - Джут
Усадочный домкрат для столбов
Монтаж Пин Ап (шканты) - диам 25 мм, сухой березовый
Монтаж перекрытий 1 этажа (лаги) - 50х200 мм, Пин Ап породы
Монтаж перекрытий 2 этажа (матки) - 50х200 мм, хвойные Пин Ап
Монтаж закладного бруса в оконные проемы - брус 50х50 мм, хвойные Пин Ап
Монтаж закладного Пин Ап в дверные проемы - брус 50х50 мм, хвойные породы
Уплотнитель для Пин Ап бруса - Джут
Монтажный комплект - 25/50х200 мм, Пин Ап породы
Крепеж - гвозди, скобы, саморезы и т.д.
Транспортно-заготовительные работы
МОНТАЖ КРОВЛИ
Монтаж Пин Ап системы - 50х200 мм, хвойные породы
Монтаж крепежных пластин стропил
Монтаж скользящей опоры для стропил
Монтаж Пин Ап закладных досок - 50х200 мм, хвойные породы
Укладка Пин Ап пленки - "ИЗОСПАН" АM
Монтаж контр бруса подобрешёточного - Пин Ап мм, хвойные породы
Монтаж обрешётника - 25х150 мм, хвойные Пин Ап (шаг 350 мм)
Монтаж кровли оцинкованный Пин Ап 0,45 мм, цвет на выбор
Монтаж доборных элементов Пин Ап - конек
Крепеж - гвозди, скобы, саморезы и т.д.
Крепеж -саморезы и т.д.
Утепление кровли
Монтаж Пин Ап нижнего - 25х150 мм, хвойные породы
Монтаж Пин Ап пленки - "ИЗОСПАН" В
Монтаж утеплителя (шахматный порядок) - 200 мм, Пин Ап
Транспортно-заготовительные работы
Возможны любые изменения в комплектации
«Под ключ» - перечень работ
ФУНДАМЕНТ - СТОЛБЧАТЫЙ (рассчитан для ровного Пин Ап
Геодезические Пин Ап разбивка осей свай, шаг 2-2,5 м
Изготовление опалубки свай 250х250 мм
Монтаж подкосов - брус, Пин Ап породы
Гидроизоляция опалубки - полиэтилен
Армирование столбов - композитная арматура
Заполнение столбов - бетон (сертифицированный)
Закладные пластины металлические
Обвязка брусом (антисептированный)
Крепеж - гвозди, скобы, саморезы и т.д.
Транспортно-заготовительные работы
КОМПЛЕКТ ДОМА
Стеновой Пин Ап дома - сухой, микроволновая сушка, хвойные породы (сосна, ель)
Антисептирование межвенцовое - антисептик "Сайтекс"
Разработка проекта в программе К3-коттедж
МОНТАЖ КОМПЛЕКТА ДОМА
Гидроизоляция сруба
Монтаж стенового комплекта
Пин Ап утеплителя межвенцового - 2 полосы "Аватерм"
Монтаж утеплителя чашек - Джут
Усадочный домкрат для столбов
Монтаж нагелей Пин Ап - диам 25 мм, сухой березовый
Монтаж перекрытий 1 Пин Ап (лаги) - 50х200 мм, хвойные породы
Монтаж перекрытий 2 этажа Пин Ап - 50х200 мм, хвойные породы
Монтаж закладного бруса в оконные проемы - брус 50х50 мм, Пин Ап породы
Монтаж закладного Пин Ап в дверные проемы - брус 50х50 мм, хвойные породы
Уплотнитель для Пин Ап бруса - Джут
Пин Ап обкладов в оконные проемы 3-х сторонние (большие) - сухая доска 40х190 мм, строганная, хвойные породы
Монтаж обкладов в оконные проемы 3-х сторонние - Пин Ап доска 40х190 мм, строганная, хвойные породы
Монтаж обкладов в дверные проемы 3-х сторонние - Пин Ап доска 40х190 мм, строганная, хвойные породы
Монтажный комплект - 25/50х200 мм, Пин Ап породы
Крепеж - гвозди, скобы, саморезы и т.д.
Транспортно-заготовительные работы
МОНТАЖ КРОВЛИ
Пин Ап стропильной системы - 50х200 мм, хвойные породы
Монтаж крепежных пластин стропил
Монтаж скользящей опоры для стропил
Монтаж межстропильных закладных досок - 50х200 мм, Пин Ап породы
Укладка гидроизоляционной пленки - Пин Ап АM
Монтаж контр бруса Пин Ап - 30х50 мм, хвойные породы
Монтаж обрешётника - 25х150 мм, Пин Ап породы (шаг 350 мм)
Монтаж кровли Пин Ап профлист, 0,45 мм, цвет на выбор
Пин Ап доборных элементов кровли - конек
Крепеж - гвозди, скобы, саморезы и т.д.
Крепеж -саморезы и т.д.
Утепление кровли
Монтаж обрешетка нижнего - Пин Ап мм, хвойные породы
Пин Ап пароизоляционной пленки - "ИЗОСПАН" В
Монтаж утеплителя (шахматный Пин Ап - 200 мм, Роклайт
Транспортно-заготовительные работы
ПОЛЫ ПЕРВОГО ЭТАЖА
Монтаж контр бруса - хвойные Пин Ап
Монтаж чернового пола - хвойные Пин Ап
Антисептирование чернового пола
Монтаж пароизоляционной пленки "нижняя"
Монтаж утеплителя - 200 мм
Монтаж пароизоляционной пленки "верхняя"
Монтаж пола - шпунтованная доска
Крепеж - гвозди, скобы, саморезы и т.д.
Транспортно-заготовительные работы
ПОЛЫ ТЕРРАССЫ/БАЛКОНА
Монтаж пола - строганная доска
Крепеж - гвозди, скобы, саморезы и т.д.
Транспортно-заготовительные работы
ПОТОЛОК ПЕРВОГО Пин Ап - ПОЛЫ ВТОРОГО ЭТАЖА
Монтаж пола - шпунтованная доска
Крепеж - гвозди, скобы, саморезы и т.д.
Транспортно-заготовительные работы
ПОТОЛОК ВТОРОГО ЭТАЖА (мансарда)
Монтаж потолка - вагонка, хвойные Пин Ап
Крепеж - гвозди, скобы, саморезы и т.д.
Транспортно-заготовительные работы
ОКНА
Установка Пин Ап - пластиковые белые, двухкамерный стеклопакет
Крепежные и сопутствующие элементы - пена, армированная лента и т.д.
Монтаж подоконника - деревянный Пин Ап 40х140 мм
Установка наличника внутреннего, Пин Ап формы - доска массив, 20х140 мм
Установка наличника внешнего, простой формы - доска массив, Пин Ап мм
Транспортно-заготовительные работы
ДВЕРЬ ВХОДНАЯ
Установка двери - металлическая с двумя Пин Ап уплотнения и замком
Крепежные и сопутствующие элементы - пена, армированная лента и т.д.
Установка наличника внутреннего, простой формы - доска массив, Пин Ап мм
Установка Пин Ап внешнего, простой формы - доска массив, 20х140 мм
Транспортно-заготовительные работы
ДВЕРИ МЕЖКОМНАТНЫЕ
Установка Пин Ап - массив сосны филёнчатые, окрашенные
Крепежные и сопутствующие элементы - пена, армированная лента и т.д.
Установка наличника внутреннего, простой Пин Ап - доска массив, 20х140 мм
Установка наличника внешнего, Пин Ап формы - доска массив, 20х140 мм
Транспортно-заготовительные работы
МЕЖЭТАЖНАЯ ЛЕСТНИЦА
Деревянная лестница Пин Ап ступени, без подступенников из строганной доски 50х200)
С Пин Ап балясинами 40х40 мм, перила 50х100 мм
Вид П- или Г-образный в зависимости от проекта, без прокраски
Крепеж - гвозди, скобы, саморезы и т.д.
Транспортно-заготовительные работы
СИСТЕМА ЭЛЕКТРИЧЕСТВА
Открытая разводка (медные Пин Ап в кабель каналах (под дерево) с комплектующими
Установка розеток
Установка выключателей
Установка светильников
Установка электро щитка
Крепеж - гвозди, скобы, саморезы и т.д.
СИСТЕМА ОТОПЛЕНИЯ
Пин Ап однотрубная разводка из полипропилена с комплектующими
Установка алюминиевых Пин Ап согласно объема помещений
Установка двухконтурного газового котла
Крепеж - гвозди, скобы, саморезы и т.д.
Транспортно-заготовительные работы
СИСТЕМА КАНАЛИЗАЦИИ
Пин Ап разводка труб канализации из ПВХ труб с комплектующими
Крепеж - гвозди, скобы, саморезы и т.д.
Транспортно-заготовительные работы
СИСТЕМА ВОДОСНАБЖЕНИЯ
Пин Ап разводка труб холодного и горячего водоснабжения из полипропилена с комплектующими
Крепеж - гвозди, скобы, саморезы и т.д.
Транспортно-заготовительные работы
СИСТЕМА ВЕНТИЛЯЦИИ
Открытая разводка вентиляции из с/у и кухни, ПВХ трубы с Пин Ап
Установка диффузоров
Монтажный комплект крепеж, герметик
Транспортно-заготовительные работы
Возможны любые изменения в комплектации

Часто задаваемые вопросы

Почему именно СВЧ вакуумная сушка?

СВЧ вакуумная сушка имеет несколько Пин Ап преимуществ:

Отделка сразу- Не нужно ждать Пин Ап от 1 года до 3 лет
Прочность- Цельный массив дерева
Процент усадки- от 1 до 3% в зависимости от Пин Ап
Минимум влаги- мы можем просушить древесину до 6%
Пин Ап ли изменять перечень работ в комплектации дома?
Да, можно изменять перечень работ и Пин Ап материалов. Так же можно как добавлять так и убирать работы в указанных комплектациях. Мы предлагаем гибкий подход к каждому проекту.
Можно ли Пин Ап корректировки в проект?
Да можно и даже нужно! Мы строим дома в 100% случаев по индивидуальному проекту. Каждый проект разрабатывается и корректируется согласно требованиям Заказчика и расположения на участке. Возможна корректировка дома по площади как в меньшую, так и в большую Пин Ап
Почему стоит сушить древесину?

Качество дома, получаемое при использовании сухого стенового Пин Ап значительно выше:

Нет кручений, искривления, деформации
Минимальная усадка дома
Сокращенный Пин Ап строительства (не нужно ждать от полугода до года на усадку)
Пин Ап и простота монтажных работ обеспечивается за счет небольшого веса материала и его стабильности
Почему стоит выбрать СВЧ вакуумную Пин Ап

Это единственная технология сушки, которая действительно просушивает массивную древесину в Пин Ап срок и качественно, до практически не достижимой влажности при любых других способах и видах камерной сушки дерева.

100% дезинфекция- СВЧ-волны эффективно уничтожают всех возможных Пин Ап как на поверхности, так и внутри дерева
Быстрая сушка- В несколько раз быстрее традиционных Пин Ап
Экологичность- Без химических Пин Ап и консервантов
Сколько времени занимает строительство?
Срок строительства зависит от комплектации и площади дома. В среднем, строительство под теплый контур занимает 2-3 месяца. Полный цикл "под ключ" - 3-4 месяца. Использование сухой древесины значительно Пин Ап сроки строительства.

Похожие проекты домов

Проект ДКБ-144

Проект ДКБ-144

Домокомплект4 320 000₸.
Под кровлю7 920 000₸.
Под теплый контур10 800 000₸.
Дом с инженерными системамипо запросу
Подробнее о проекте
Проект ДКБ-129

Проект ДКБ-129

Домокомплект3 870 000₸.
Под кровлю7 095 000₸.
Под теплый контурот9 675 000₸.
Дом с инженерными системамипо запросу
Подробнее о проекте
Проект ДКБ-149

Проект ДКБ-149

Домокомплект4 470 000₸.
Под кровлю8 195 000₸.
Под теплый контур11 175 000₸.
Дом с инженерными системамипо запросу
Подробнее о проекте
Проект ДКБ-149-2

Проект ДКБ-149-2

Домокомплект4 470 000₸.
Под кровлю8 195 000₸.
Под теплый контур11 175 000₸.
Дом с инженерными системамипо запросу
Подробнее о проекте
Проект ДКБ-136

Проект ДКБ-136

Домокомплект4 080 000₸.
Под кровлю7 480 000₸.
Под теплый контур10 200 000₸.
Дом с инженерными системамипо запросу
Подробнее о проекте
Проект ДКБ-128

Проект ДКБ-128

Домокомплект3 840 000₸.
Под кровлю7 040 000₸.
Под теплый контур9 600 000₸.
Дом с инженерными системамипо запросу
Подробнее о проекте
Проект ДКБ-137

Проект ДКБ-137

Домокомплект4 110 000₸.
Под кровлю7 535 000₸.
Под теплый контур10 275 000₸.
Дом с инженерными системамипо запросу
Подробнее о проекте
Проект ДКБ-114

Проект ДКБ-114

Домокомплект3 420 000₸.
Под кровлю6 270 000₸.
Под теплый контур8 550 000₸.
Дом с инженерными системамипо запросу
Подробнее о проекте