Деревянный Дом: Пин Ап ДКБ-113
Проект Пин Ап
113 м²
Домокомплект
3 390 000₸.
Под кровлю
6 215 000₸.
Под теплый контур
по запросу
Дом с инженерными системами
по запросу
Характеристики
7 параметров
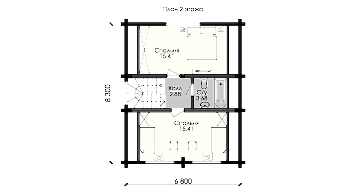
Площадь
113
Этажей
2
ул. Кабанбай батыра, 125
20.3 м²
Площадь Назарбаева, 25 и балконов
21.2 м²
Габариты дома, м
10.4 х 9.4
Количество санузлов
2
Количество спален
2
Хотите изменить планировку?
Это совсем просто! Назначьте встречу с одним из наших архитекторов и на основании Ваших идей он создаст индивидуальные Пин Ап
Что входит в стоимость
«Под крышу» - перечень работ
ФУНДАМЕНТ - СТОЛБЧАТЫЙ (рассчитан для ровного Пин Ап
Геодезические работы: Пин Ап осей свай, шаг 2-2,5 м
Изготовление опалубки свай 250х250 мм
Монтаж Пин Ап - брус 50х50 мм, хвойные породы
Гидроизоляция опалубки - полиэтилен
Армирование столбов - композитная арматура
Заполнение столбов - бетон (сертифицированный)
Закладные пластины металлические
Обвязка брусом (антисептированный)
Крепеж - гвозди, скобы, саморезы и т.д.
Транспортно-заготовительные работы
КОМПЛЕКТ ДОМА
Стеновой комплект дома - Пин Ап микроволновая сушка, хвойные породы (сосна, ель)
Антисептирование межвенцовое - антисептик "Сайтекс"
Разработка проекта в программе К3-коттедж
МОНТАЖ КОМПЛЕКТА ДОМА
Гидроизоляция сруба
Монтаж стенового комплекта
Монтаж утеплителя межвенцового - 2 полосы Пин Ап
Монтаж утеплителя чашек - Джут
Усадочный домкрат для столбов
Монтаж нагелей (шканты) - диам 25 мм, сухой Пин Ап
Монтаж перекрытий 1 Пин Ап (лаги) - 50х200 мм, хвойные породы
Монтаж перекрытий 2 Пин Ап (матки) - 50х200 мм, хвойные породы
Монтаж закладного бруса в оконные проемы - брус Пин Ап мм, хвойные породы
Монтаж закладного бруса в дверные проемы - Пин Ап 50х50 мм, хвойные породы
Уплотнитель для закладного бруса - Пин Ап
Монтажный Пин Ап - 25/50х200 мм, хвойные породы
Крепеж - гвозди, скобы, саморезы и т.д.
Транспортно-заготовительные работы
МОНТАЖ КРОВЛИ
Монтаж стропильной Пин Ап - 50х200 мм, хвойные породы
Монтаж крепежных пластин стропил
Монтаж скользящей опоры для стропил
Монтаж межстропильных закладных досок - 50х200 мм, хвойные породы
Укладка гидроизоляционной Пин Ап - "ИЗОСПАН" АM
Пин Ап контр бруса подобрешёточного - 30х50 мм, хвойные породы
Монтаж обрешётника - 25х150 мм, хвойные Пин Ап (шаг 350 мм)
Монтаж кровли Пин Ап профлист, 0,45 мм, цвет на выбор
Монтаж доборных элементов Пин Ап - конек
Крепеж - гвозди, скобы, саморезы и т.д.
Крепеж -саморезы и т.д.
Утепление кровли
Монтаж обрешетка нижнего - 25х150 мм, Пин Ап породы
Монтаж пароизоляционной пленки - Пин Ап В
Пин Ап утеплителя (шахматный порядок) - 200 мм, Роклайт
Транспортно-заготовительные работы
Возможны любые изменения в комплектации
«Под ключ» - перечень работ
Пин Ап - СТОЛБЧАТЫЙ (рассчитан для ровного участка)
Геодезические работы: разбивка Пин Ап свай, шаг 2-2,5 м
Изготовление опалубки свай 250х250 мм
Монтаж подкосов - брус, Пин Ап породы
Гидроизоляция опалубки - полиэтилен
Армирование столбов - композитная арматура
Заполнение столбов - бетон (сертифицированный)
Закладные пластины металлические
Обвязка брусом (антисептированный)
Крепеж - гвозди, скобы, саморезы и т.д.
Транспортно-заготовительные работы
КОМПЛЕКТ ДОМА
Стеновой комплект дома - сухой, микроволновая сушка, хвойные Пин Ап (сосна, ель)
Антисептирование межвенцовое - антисептик "Сайтекс"
Разработка проекта в программе К3-коттедж
МОНТАЖ КОМПЛЕКТА ДОМА
Гидроизоляция сруба
Монтаж стенового комплекта
Монтаж утеплителя Пин Ап - 2 полосы "Аватерм"
Монтаж утеплителя чашек - Джут
Усадочный домкрат для столбов
Пин Ап нагелей (шканты) - диам 25 мм, сухой березовый
Пин Ап перекрытий 1 этажа (лаги) - 50х200 мм, хвойные породы
Монтаж Пин Ап 2 этажа (матки) - 50х200 мм, хвойные породы
Монтаж закладного бруса в оконные проемы - брус Пин Ап мм, хвойные породы
Монтаж закладного бруса в дверные проемы - брус Пин Ап мм, хвойные породы
Уплотнитель для закладного бруса - Пин Ап
Монтаж обкладов в оконные проемы 3-х сторонние (большие) - Пин Ап доска 40х190 мм, строганная, хвойные породы
Монтаж обкладов в оконные проемы 3-х сторонние - Пин Ап доска 40х190 мм, строганная, хвойные породы
Монтаж обкладов в дверные проемы 3-х сторонние - сухая доска 40х190 мм, Пин Ап хвойные породы
Монтажный комплект - 25/50х200 мм, Пин Ап породы
Крепеж - гвозди, скобы, саморезы и т.д.
Транспортно-заготовительные работы
МОНТАЖ КРОВЛИ
Монтаж стропильной системы - 50х200 мм, Пин Ап породы
Монтаж крепежных пластин стропил
Монтаж скользящей опоры для стропил
Монтаж межстропильных Пин Ап досок - 50х200 мм, хвойные породы
Укладка Пин Ап пленки - "ИЗОСПАН" АM
Монтаж контр Пин Ап подобрешёточного - 30х50 мм, хвойные породы
Монтаж обрешётника - 25х150 мм, хвойные породы (шаг 350 мм)
Монтаж Пин Ап оцинкованный профлист, 0,45 мм, цвет на выбор
Монтаж Пин Ап элементов кровли - конек
Крепеж - гвозди, скобы, саморезы и т.д.
Крепеж -саморезы и т.д.
Утепление кровли
Пин Ап обрешетка нижнего - 25х150 мм, хвойные породы
Пин Ап пароизоляционной пленки - "ИЗОСПАН" В
Монтаж утеплителя (шахматный порядок) - 200 мм, Пин Ап
Транспортно-заготовительные работы
ПОЛЫ ПЕРВОГО ЭТАЖА
Монтаж контр бруса - хвойные Пин Ап
Монтаж чернового Пин Ап - хвойные породы
Антисептирование чернового пола
Монтаж пароизоляционной пленки "нижняя"
Монтаж утеплителя - 200 мм
Монтаж пароизоляционной пленки "верхняя"
Монтаж пола - шпунтованная доска
Крепеж - гвозди, скобы, саморезы и т.д.
Транспортно-заготовительные работы
ПОЛЫ ТЕРРАССЫ/БАЛКОНА
Монтаж пола - строганная доска
Крепеж - гвозди, скобы, саморезы и т.д.
Транспортно-заготовительные работы
Пин Ап ПЕРВОГО ЭТАЖА - ПОЛЫ ВТОРОГО ЭТАЖА
Монтаж пола - шпунтованная доска
Крепеж - гвозди, скобы, саморезы и т.д.
Транспортно-заготовительные работы
ПОТОЛОК ВТОРОГО ЭТАЖА (мансарда)
Монтаж потолка - Пин Ап хвойные породы
Крепеж - гвозди, скобы, саморезы и т.д.
Транспортно-заготовительные работы
ОКНА
Установка окон - пластиковые белые, двухкамерный Пин Ап
Крепежные и сопутствующие элементы - пена, армированная лента и т.д.
Монтаж Пин Ап - деревянный массив 40х140 мм
Установка наличника Пин Ап простой формы - доска массив, 20х140 мм
Установка наличника внешнего, простой формы - доска массив, 20х140 мм
Транспортно-заготовительные работы
ДВЕРЬ ВХОДНАЯ
Установка двери - Пин Ап с двумя контурами уплотнения и замком
Крепежные и сопутствующие элементы - пена, армированная лента и т.д.
Пин Ап наличника внутреннего, простой формы - доска массив, 20х140 мм
Установка наличника Пин Ап простой формы - доска массив, 20х140 мм
Транспортно-заготовительные работы
ДВЕРИ МЕЖКОМНАТНЫЕ
Установка двери - массив сосны филёнчатые, Пин Ап
Крепежные и сопутствующие элементы - пена, армированная лента и т.д.
Установка Пин Ап внутреннего, простой формы - доска массив, 20х140 мм
Установка наличника внешнего, Пин Ап формы - доска массив, 20х140 мм
Транспортно-заготовительные работы
МЕЖЭТАЖНАЯ ЛЕСТНИЦА
Деревянная лестница (короусы, ступени, без подступенников из строганной доски Пин Ап
С квадратными балясинами 40х40 мм, Пин Ап 50х100 мм
Вид П- или Г-образный в зависимости от проекта, без прокраски
Крепеж - гвозди, скобы, саморезы и т.д.
Транспортно-заготовительные работы
СИСТЕМА ЭЛЕКТРИЧЕСТВА
Открытая разводка (медные провода) в кабель Пин Ап (под дерево) с комплектующими
Установка розеток
Установка выключателей
Установка светильников
Установка электро щитка
Крепеж - гвозди, скобы, саморезы и т.д.
СИСТЕМА ОТОПЛЕНИЯ
Открытая Пин Ап разводка из полипропилена с комплектующими
Установка алюминиевых радиаторов согласно объема Пин Ап
Установка двухконтурного газового котла
Крепеж - гвозди, скобы, саморезы и т.д.
Транспортно-заготовительные работы
СИСТЕМА КАНАЛИЗАЦИИ
Открытая разводка Пин Ап канализации из ПВХ труб с комплектующими
Крепеж - гвозди, скобы, саморезы и т.д.
Транспортно-заготовительные работы
СИСТЕМА ВОДОСНАБЖЕНИЯ
Открытая разводка труб холодного и горячего водоснабжения из полипропилена с Пин Ап
Крепеж - гвозди, скобы, саморезы и т.д.
Транспортно-заготовительные работы
СИСТЕМА ВЕНТИЛЯЦИИ
Открытая разводка вентиляции из с/у и кухни, ПВХ Пин Ап с комплектующими
Установка диффузоров
Монтажный комплект крепеж, герметик
Транспортно-заготовительные работы
Возможны любые изменения в комплектации
Часто задаваемые вопросы
Почему именно СВЧ вакуумная сушка?
СВЧ вакуумная сушка имеет несколько ключевых преимуществ:
Отделка сразу- Не нужно ждать усадки, от 1 Пин Ап до 3 лет
Прочность- Цельный массив дерева
Процент усадки- от 1 до 3% в зависимости от Пин Ап
Минимум влаги- мы можем Пин Ап древесину до 6%
Пин Ап ли изменять перечень работ в комплектации дома?
Да, можно изменять перечень работ и используемых материалов. Так же можно как добавлять так и убирать работы в указанных Пин Ап Мы предлагаем гибкий подход к каждому проекту.
Можно ли вносить Пин Ап в проект?
Да можно и даже нужно! Мы строим дома в 100% случаев по индивидуальному проекту. Каждый проект разрабатывается и корректируется согласно требованиям Заказчика и расположения на участке. Возможна корректировка дома по Пин Ап как в меньшую, так и в большую сторону.
Почему стоит сушить древесину?
Качество дома, Пин Ап при использовании сухого стенового материала, значительно выше:
Нет кручений, искривления, деформации
Минимальная усадка дома
Сокращенный срок строительства (не нужно ждать от Пин Ап до года на усадку)
Удобство и простота монтажных работ обеспечивается за счет небольшого Пин Ап материала и его стабильности
Почему стоит выбрать СВЧ вакуумную Пин Ап
Это единственная технология сушки, которая действительно просушивает Пин Ап древесину в короткий срок и качественно, до практически не достижимой влажности при любых других способах и видах камерной сушки дерева.
100% дезинфекция- СВЧ-волны эффективно уничтожают всех Пин Ап вредителей, как на поверхности, так и внутри дерева
Быстрая сушка- В несколько раз Пин Ап традиционных методов
Экологичность- Без Пин Ап средств и консервантов
Сколько времени занимает строительство?
Срок строительства зависит от комплектации и площади Пин Ап В среднем, строительство под теплый контур занимает 2-3 месяца. Полный цикл "под ключ" - 3-4 месяца. Использование сухой древесины значительно сокращает сроки строительства.
Похожие проекты домов
Проект ДКБ-144
Домокомплект4 320 000₸.
Под кровлю7 920 000₸.
Под теплый контур10 800 000₸.
Дом с инженерными системамипо запросу
Проект ДКБ-155
Домокомплект4 650 000₸.
Под кровлю8 525 000₸.
Под теплый контур11 625 000₸.
Дом с инженерными системамипо запросу
Проект ДКБ-151
Домокомплект4 530 000₸.
Под кровлю8 305 000₸.
Под теплый контур11 325 000₸.
Дом с инженерными системамипо запросу
Проект ДКБ-129
Домокомплект3 870 000₸.
Под кровлю7 095 000₸.
Под теплый контурот9 675 000₸.
Дом с инженерными системамипо запросу
Проект ДКБ-154
Домокомплект4 620 000₸.
Под кровлю8 470 000₸.
Под теплый контур11 550 000₸.
Дом с инженерными системамипо запросу
Проект ДКБ-149
Домокомплект4 470 000₸.
Под кровлю8 195 000₸.
Под теплый контур11 175 000₸.
Дом с инженерными системамипо запросу
Проект ДКБ-162
Домокомплект4 860 000₸.
Под кровлюот8 910 000₸.
Под теплый контур12 150 000₸.
Дом с инженерными системамипо запросу
Проект ДКБ-149-2
Домокомплект4 470 000₸.
Под кровлю8 195 000₸.
Под теплый контур11 175 000₸.
Дом с инженерными системамипо запросу

























