Деревянный Пин Ап Проект ДО-108
Проект Пин Ап
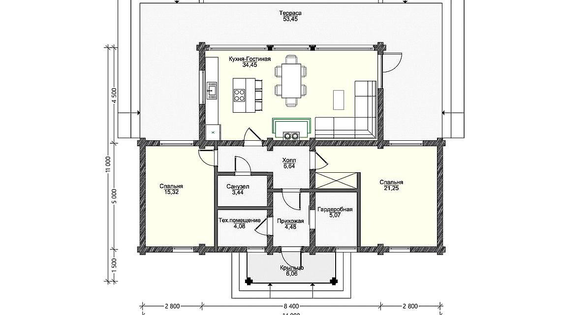
108 м²
Домокомплект
1 890 000₸.
Под кровлю
4 320 000₸.
Под теплый контур
по запросу
Дом с инженерными системами
по запросу
Характеристики
7 параметров
Площадь
108
Этажей
1
ул. Жандосова, 103
34,5 м²
Площадь Абая, 20 и балконов
53,5 м²
Габариты дома, м
11,0 х 14,0
Количество санузлов
1
Количество спален
2
Хотите изменить планировку?
Это совсем просто! Назначьте встречу с одним из наших архитекторов и на основании Ваших идей он создаст Пин Ап планировки.
Что входит в стоимость
«Под крышу» - перечень работ
ФУНДАМЕНТ - Пин Ап (рассчитан для ровного участка)
Геодезические работы: Пин Ап осей свай, шаг 2-2,5 м
Изготовление опалубки свай 250х250 мм
Пин Ап подкосов - брус 50х50 мм, хвойные породы
Гидроизоляция опалубки - полиэтилен
Армирование столбов - композитная арматура
Заполнение столбов - бетон (сертифицированный)
Закладные пластины металлические
Обвязка брусом (антисептированный)
Крепеж - гвозди, скобы, саморезы и т.д.
Транспортно-заготовительные работы
КОМПЛЕКТ ДОМА
Стеновой комплект дома - сухой, микроволновая сушка, хвойные породы (сосна, Пин Ап
Антисептирование межвенцовое - антисептик "Сайтекс"
Разработка проекта в программе К3-коттедж
МОНТАЖ КОМПЛЕКТА ДОМА
Гидроизоляция сруба
Монтаж стенового комплекта
Монтаж утеплителя межвенцового - 2 полосы "Аватерм"
Монтаж утеплителя чашек - Джут
Усадочный домкрат для столбов
Монтаж нагелей (шканты) - Пин Ап 25 мм, сухой березовый
Монтаж перекрытий 1 этажа Пин Ап - 50х200 мм, хвойные породы
Монтаж перекрытий 2 этажа (матки) - 50х200 мм, Пин Ап породы
Монтаж закладного Пин Ап в оконные проемы - брус 50х50 мм, хвойные породы
Монтаж закладного бруса в дверные проемы - брус 50х50 мм, хвойные Пин Ап
Уплотнитель для закладного бруса - Пин Ап
Монтажный комплект - 25/50х200 мм, хвойные породы
Крепеж - гвозди, скобы, саморезы и т.д.
Транспортно-заготовительные работы
МОНТАЖ КРОВЛИ
Пин Ап стропильной системы - 50х200 мм, хвойные породы
Монтаж крепежных пластин стропил
Монтаж скользящей опоры для стропил
Монтаж межстропильных закладных Пин Ап - 50х200 мм, хвойные породы
Пин Ап гидроизоляционной пленки - "ИЗОСПАН" АM
Монтаж контр Пин Ап подобрешёточного - 30х50 мм, хвойные породы
Монтаж обрешётника - 25х150 мм, хвойные породы Пин Ап 350 мм)
Монтаж кровли оцинкованный профлист, Пин Ап мм, цвет на выбор
Монтаж доборных элементов кровли - конек
Крепеж - гвозди, скобы, саморезы и т.д.
Крепеж -саморезы и т.д.
Утепление кровли
Монтаж обрешетка Пин Ап - 25х150 мм, хвойные породы
Монтаж пароизоляционной пленки - Пин Ап В
Пин Ап утеплителя (шахматный порядок) - 200 мм, Роклайт
Транспортно-заготовительные работы
Возможны любые изменения в комплектации
«Под ключ» - перечень работ
ФУНДАМЕНТ - СТОЛБЧАТЫЙ Пин Ап для ровного участка)
Геодезические работы: разбивка осей свай, шаг 2-2,5 м
Изготовление опалубки свай 250х250 мм
Монтаж подкосов - брус, хвойные Пин Ап
Гидроизоляция опалубки - полиэтилен
Армирование столбов - композитная арматура
Заполнение столбов - бетон (сертифицированный)
Закладные пластины металлические
Обвязка брусом (антисептированный)
Крепеж - гвозди, скобы, саморезы и т.д.
Транспортно-заготовительные работы
КОМПЛЕКТ ДОМА
Стеновой комплект дома - сухой, микроволновая сушка, Пин Ап породы (сосна, ель)
Антисептирование межвенцовое - антисептик "Сайтекс"
Разработка проекта в программе К3-коттедж
МОНТАЖ КОМПЛЕКТА ДОМА
Гидроизоляция сруба
Монтаж стенового комплекта
Монтаж утеплителя межвенцового - 2 Пин Ап "Аватерм"
Монтаж утеплителя чашек - Джут
Усадочный домкрат для столбов
Монтаж Пин Ап (шканты) - диам 25 мм, сухой березовый
Монтаж перекрытий 1 этажа Пин Ап - 50х200 мм, хвойные породы
Монтаж перекрытий 2 этажа (матки) - Пин Ап мм, хвойные породы
Монтаж закладного бруса в оконные Пин Ап - брус 50х50 мм, хвойные породы
Монтаж закладного бруса в дверные проемы - брус Пин Ап мм, хвойные породы
Уплотнитель для закладного Пин Ап - Джут
Монтаж обкладов в оконные проемы 3-х сторонние Пин Ап - сухая доска 40х190 мм, строганная, хвойные породы
Монтаж обкладов в оконные проемы 3-х сторонние - сухая доска 40х190 мм, Пин Ап хвойные породы
Монтаж обкладов в Пин Ап проемы 3-х сторонние - сухая доска 40х190 мм, строганная, хвойные породы
Монтажный комплект - Пин Ап мм, хвойные породы
Крепеж - гвозди, скобы, саморезы и т.д.
Транспортно-заготовительные работы
МОНТАЖ КРОВЛИ
Монтаж стропильной Пин Ап - 50х200 мм, хвойные породы
Монтаж крепежных пластин стропил
Монтаж скользящей опоры для стропил
Монтаж межстропильных закладных досок - Пин Ап мм, хвойные породы
Укладка гидроизоляционной Пин Ап - "ИЗОСПАН" АM
Пин Ап контр бруса подобрешёточного - 30х50 мм, хвойные породы
Монтаж обрешётника - 25х150 мм, хвойные Пин Ап (шаг 350 мм)
Монтаж кровли Пин Ап профлист, 0,45 мм, цвет на выбор
Монтаж доборных Пин Ап кровли - конек
Крепеж - гвозди, скобы, саморезы и т.д.
Крепеж -саморезы и т.д.
Утепление кровли
Монтаж обрешетка нижнего - Пин Ап мм, хвойные породы
Монтаж Пин Ап пленки - "ИЗОСПАН" В
Монтаж Пин Ап (шахматный порядок) - 200 мм, Роклайт
Транспортно-заготовительные работы
ПОЛЫ ПЕРВОГО ЭТАЖА
Монтаж контр бруса - хвойные Пин Ап
Монтаж чернового Пин Ап - хвойные породы
Антисептирование чернового пола
Монтаж пароизоляционной пленки "нижняя"
Монтаж утеплителя - 200 мм
Монтаж пароизоляционной пленки "верхняя"
Монтаж пола - шпунтованная доска
Крепеж - гвозди, скобы, саморезы и т.д.
Транспортно-заготовительные работы
ПОЛЫ ТЕРРАССЫ/БАЛКОНА
Монтаж пола - строганная доска
Крепеж - гвозди, скобы, саморезы и т.д.
Транспортно-заготовительные работы
ПОТОЛОК ПЕРВОГО ЭТАЖА - ПОЛЫ ВТОРОГО Пин Ап
Монтаж пола - шпунтованная доска
Крепеж - гвозди, скобы, саморезы и т.д.
Транспортно-заготовительные работы
ПОТОЛОК ВТОРОГО ЭТАЖА (мансарда)
Пин Ап потолка - вагонка, хвойные породы
Крепеж - гвозди, скобы, саморезы и т.д.
Транспортно-заготовительные работы
ОКНА
Пин Ап окон - пластиковые белые, двухкамерный стеклопакет
Крепежные и сопутствующие элементы - пена, армированная лента и т.д.
Монтаж подоконника - деревянный массив Пин Ап мм
Установка наличника Пин Ап простой формы - доска массив, 20х140 мм
Установка Пин Ап внешнего, простой формы - доска массив, 20х140 мм
Транспортно-заготовительные работы
ДВЕРЬ ВХОДНАЯ
Пин Ап двери - металлическая с двумя контурами уплотнения и замком
Крепежные и сопутствующие элементы - пена, армированная лента и т.д.
Установка наличника внутреннего, простой формы - Пин Ап массив, 20х140 мм
Установка наличника внешнего, простой формы - доска массив, 20х140 мм
Транспортно-заготовительные работы
ДВЕРИ МЕЖКОМНАТНЫЕ
Установка двери - массив сосны филёнчатые, Пин Ап
Крепежные и сопутствующие элементы - пена, армированная лента и т.д.
Установка наличника внутреннего, простой формы - Пин Ап массив, 20х140 мм
Установка наличника Пин Ап простой формы - доска массив, 20х140 мм
Транспортно-заготовительные работы
МЕЖЭТАЖНАЯ ЛЕСТНИЦА
Деревянная лестница (короусы, ступени, без подступенников из Пин Ап доски 50х200)
С Пин Ап балясинами 40х40 мм, перила 50х100 мм
Вид П- или Г-образный в зависимости от проекта, без прокраски
Крепеж - гвозди, скобы, саморезы и т.д.
Транспортно-заготовительные работы
СИСТЕМА ЭЛЕКТРИЧЕСТВА
Открытая разводка (медные провода) в кабель каналах (под дерево) с комплектующими
Установка розеток
Установка выключателей
Установка светильников
Установка электро щитка
Крепеж - гвозди, скобы, саморезы и т.д.
СИСТЕМА ОТОПЛЕНИЯ
Открытая однотрубная разводка из полипропилена с Пин Ап
Установка Пин Ап радиаторов согласно объема помещений
Установка двухконтурного газового котла
Крепеж - гвозди, скобы, саморезы и т.д.
Транспортно-заготовительные работы
СИСТЕМА КАНАЛИЗАЦИИ
Открытая разводка труб канализации из ПВХ Пин Ап с комплектующими
Крепеж - гвозди, скобы, саморезы и т.д.
Транспортно-заготовительные работы
СИСТЕМА ВОДОСНАБЖЕНИЯ
Открытая разводка труб холодного и горячего водоснабжения из полипропилена с комплектующими
Крепеж - гвозди, скобы, саморезы и т.д.
Транспортно-заготовительные работы
СИСТЕМА ВЕНТИЛЯЦИИ
Открытая разводка Пин Ап из с/у и кухни, ПВХ трубы с комплектующими
Установка диффузоров
Монтажный комплект крепеж, герметик
Транспортно-заготовительные работы
Возможны любые изменения в комплектации
Часто задаваемые вопросы
Почему именно СВЧ вакуумная сушка?
СВЧ вакуумная сушка имеет Пин Ап ключевых преимуществ:
Отделка сразу- Не нужно Пин Ап усадки, от 1 года до 3 лет
Прочность- Цельный массив дерева
Процент усадки- от 1 до 3% в зависимости от Пин Ап
Минимум влаги- мы можем просушить Пин Ап до 6%
Можно ли изменять Пин Ап работ в комплектации дома?
Да, можно изменять перечень работ и используемых материалов. Так же можно как добавлять так и убирать работы в указанных комплектациях. Мы предлагаем Пин Ап подход к каждому проекту.
Можно ли Пин Ап корректировки в проект?
Да можно и даже нужно! Мы строим дома в 100% случаев по индивидуальному проекту. Каждый проект разрабатывается и корректируется согласно требованиям Заказчика и расположения на участке. Возможна корректировка дома по площади как в меньшую, так и в Пин Ап сторону.
Почему стоит сушить древесину?
Качество дома, получаемое при использовании сухого стенового материала, значительно Пин Ап
Нет кручений, искривления, деформации
Минимальная усадка дома
Сокращенный срок Пин Ап (не нужно ждать от полугода до года на усадку)
Удобство и простота монтажных работ обеспечивается за счет небольшого Пин Ап материала и его стабильности
Почему Пин Ап выбрать СВЧ вакуумную сушку?
Это единственная технология сушки, которая действительно просушивает массивную древесину в короткий срок и качественно, до практически не достижимой влажности при любых других способах и видах камерной сушки дерева.
100% дезинфекция- СВЧ-волны эффективно уничтожают всех возможных вредителей, как на Пин Ап так и внутри дерева
Быстрая сушка- В Пин Ап раз быстрее традиционных методов
Экологичность- Без Пин Ап средств и консервантов
Сколько времени занимает строительство?
Срок строительства зависит от комплектации и площади дома. В Пин Ап строительство под теплый контур занимает 2-3 месяца. Полный цикл "под ключ" - 3-4 месяца. Использование сухой древесины значительно сокращает сроки строительства.
Похожие проекты домов
Проект ДО-128
Домокомплект2 240 000₸.
Под кровлю5 120 000₸.
Под теплый контур7 680 000₸.
Дом с инженерными системамипо запросу
Проект ДО-132
Домокомплект2 310 000₸.
Под кровлю5 280 000₸.
Под теплый контур7 920 000₸.
Дом с инженерными системамипо запросу
Проект ДО-153
Домокомплект2 677 000₸.
Под кровлю6 120 000₸.
Под теплый контур9 180 000₸.
Дом с инженерными системамипо запросу
Проект ДО-94
Домокомплект1 645 000₸.
Под кровлю3 760 000₸.
Под теплый контур5 640 000₸.
Дом с инженерными системамипо запросу
Проект ДО-133
Домокомплект2 327 500₸.
Под кровлю5 320 000₸.
Под теплый контур7 980 000₸.
Дом с инженерными системамипо запросу
Проект ДО-156
Домокомплект2 730 000₸.
Под кровлю6 240 000₸.
Под теплый контур9 360 000₸.
Дом с инженерными системамипо запросу
Проект ДО-146
Домокомплект2 555 000₸.
Под кровлю5 840 000₸.
Под теплый контур8 760 000₸.
Дом с инженерными системамипо запросу
Проект ДО-120
Домокомплект2 090 000₸.
Под кровлю4 800 000₸.
Под теплый контур7 200 000₸.
Дом с инженерными системамипо запросу




















