Деревянный Пин Ап Проект ДДБ-139
Пин Ап ДДБ-139
139 м²
Домокомплект
по запросу
Под кровлю
по запросу
Под теплый контур
по запросу
Дом с инженерными системами
по запросу
Характеристики
5 параметров
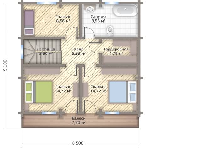
Площадь
139
Этажей
2
ул. Рыскулова, 101
9,54 м²
Количество санузлов
2
Количество спален
4
Хотите изменить планировку?
Это совсем просто! Назначьте встречу с одним из наших архитекторов и на Пин Ап Ваших идей он создаст индивидуальные планировки.
Что входит в стоимость
«Под крышу» - перечень работ
ФУНДАМЕНТ - СТОЛБЧАТЫЙ (рассчитан для Пин Ап участка)
Геодезические работы: разбивка осей Пин Ап шаг 2-2,5 м
Изготовление опалубки свай 250х250 мм
Монтаж подкосов - брус 50х50 мм, хвойные породы
Гидроизоляция опалубки - полиэтилен
Армирование столбов - композитная арматура
Заполнение столбов - бетон (сертифицированный)
Закладные пластины металлические
Обвязка брусом (антисептированный)
Крепеж - гвозди, скобы, саморезы и т.д.
Транспортно-заготовительные работы
КОМПЛЕКТ ДОМА
Стеновой комплект дома - сухой, микроволновая сушка, хвойные Пин Ап (сосна, ель)
Антисептирование межвенцовое - антисептик "Сайтекс"
Разработка проекта в программе К3-коттедж
МОНТАЖ КОМПЛЕКТА ДОМА
Гидроизоляция сруба
Монтаж стенового комплекта
Монтаж Пин Ап межвенцового - 2 полосы "Аватерм"
Монтаж утеплителя чашек - Джут
Усадочный домкрат для столбов
Монтаж Пин Ап (шканты) - диам 25 мм, сухой березовый
Монтаж перекрытий 1 Пин Ап (лаги) - 50х200 мм, хвойные породы
Монтаж перекрытий 2 этажа Пин Ап - 50х200 мм, хвойные породы
Монтаж закладного бруса в оконные проемы - брус 50х50 мм, хвойные породы
Монтаж закладного бруса в дверные проемы - Пин Ап 50х50 мм, хвойные породы
Уплотнитель для закладного бруса - Пин Ап
Монтажный комплект - 25/50х200 мм, Пин Ап породы
Крепеж - гвозди, скобы, саморезы и т.д.
Транспортно-заготовительные работы
МОНТАЖ КРОВЛИ
Монтаж стропильной системы - 50х200 мм, Пин Ап породы
Монтаж крепежных пластин стропил
Монтаж скользящей опоры для стропил
Монтаж Пин Ап закладных досок - 50х200 мм, хвойные породы
Укладка гидроизоляционной Пин Ап - "ИЗОСПАН" АM
Монтаж контр бруса подобрешёточного - 30х50 мм, хвойные породы
Пин Ап обрешётника - 25х150 мм, хвойные породы (шаг 350 мм)
Пин Ап кровли оцинкованный профлист, 0,45 мм, цвет на выбор
Монтаж Пин Ап элементов кровли - конек
Крепеж - гвозди, скобы, саморезы и т.д.
Крепеж -саморезы и т.д.
Утепление кровли
Пин Ап обрешетка нижнего - 25х150 мм, хвойные породы
Монтаж пароизоляционной Пин Ап - "ИЗОСПАН" В
Монтаж утеплителя Пин Ап порядок) - 200 мм, Роклайт
Транспортно-заготовительные работы
Возможны любые изменения в комплектации
«Под ключ» - перечень работ
ФУНДАМЕНТ - СТОЛБЧАТЫЙ (рассчитан для Пин Ап участка)
Геодезические работы: разбивка осей Пин Ап шаг 2-2,5 м
Изготовление опалубки свай 250х250 мм
Пин Ап подкосов - брус, хвойные породы
Гидроизоляция опалубки - полиэтилен
Армирование столбов - композитная арматура
Заполнение столбов - бетон (сертифицированный)
Закладные пластины металлические
Обвязка брусом (антисептированный)
Крепеж - гвозди, скобы, саморезы и т.д.
Транспортно-заготовительные работы
КОМПЛЕКТ ДОМА
Стеновой комплект дома - сухой, микроволновая сушка, хвойные породы (сосна, Пин Ап
Антисептирование межвенцовое - антисептик "Сайтекс"
Разработка проекта в программе К3-коттедж
МОНТАЖ КОМПЛЕКТА ДОМА
Гидроизоляция сруба
Монтаж стенового комплекта
Монтаж утеплителя межвенцового - 2 Пин Ап "Аватерм"
Монтаж утеплителя чашек - Джут
Усадочный домкрат для столбов
Монтаж нагелей (шканты) - Пин Ап 25 мм, сухой березовый
Монтаж перекрытий 1 этажа (лаги) - 50х200 мм, хвойные породы
Пин Ап перекрытий 2 этажа (матки) - 50х200 мм, хвойные породы
Монтаж закладного бруса в оконные проемы - брус 50х50 мм, Пин Ап породы
Монтаж закладного бруса в дверные проемы - Пин Ап 50х50 мм, хвойные породы
Уплотнитель для Пин Ап бруса - Джут
Монтаж обкладов в оконные проемы 3-х сторонние (большие) - сухая доска 40х190 мм, Пин Ап хвойные породы
Монтаж Пин Ап в оконные проемы 3-х сторонние - сухая доска 40х190 мм, строганная, хвойные породы
Монтаж обкладов в дверные проемы 3-х сторонние - сухая Пин Ап 40х190 мм, строганная, хвойные породы
Монтажный комплект - 25/50х200 мм, Пин Ап породы
Крепеж - гвозди, скобы, саморезы и т.д.
Транспортно-заготовительные работы
МОНТАЖ КРОВЛИ
Монтаж стропильной системы - 50х200 мм, хвойные породы
Монтаж крепежных пластин стропил
Монтаж скользящей опоры для стропил
Монтаж межстропильных закладных досок - 50х200 мм, Пин Ап породы
Укладка Пин Ап пленки - "ИЗОСПАН" АM
Монтаж контр бруса подобрешёточного - Пин Ап мм, хвойные породы
Монтаж обрешётника - 25х150 мм, Пин Ап породы (шаг 350 мм)
Монтаж Пин Ап оцинкованный профлист, 0,45 мм, цвет на выбор
Монтаж Пин Ап элементов кровли - конек
Крепеж - гвозди, скобы, саморезы и т.д.
Крепеж -саморезы и т.д.
Утепление кровли
Монтаж обрешетка Пин Ап - 25х150 мм, хвойные породы
Монтаж пароизоляционной Пин Ап - "ИЗОСПАН" В
Монтаж утеплителя Пин Ап порядок) - 200 мм, Роклайт
Транспортно-заготовительные работы
ПОЛЫ ПЕРВОГО ЭТАЖА
Монтаж Пин Ап бруса - хвойные породы
Монтаж Пин Ап пола - хвойные породы
Антисептирование чернового пола
Монтаж пароизоляционной пленки "нижняя"
Монтаж утеплителя - 200 мм
Монтаж пароизоляционной пленки "верхняя"
Монтаж пола - шпунтованная доска
Крепеж - гвозди, скобы, саморезы и т.д.
Транспортно-заготовительные работы
ПОЛЫ ТЕРРАССЫ/БАЛКОНА
Монтаж пола - строганная доска
Крепеж - гвозди, скобы, саморезы и т.д.
Транспортно-заготовительные работы
ПОТОЛОК ПЕРВОГО ЭТАЖА - ПОЛЫ Пин Ап ЭТАЖА
Монтаж пола - шпунтованная доска
Крепеж - гвозди, скобы, саморезы и т.д.
Транспортно-заготовительные работы
ПОТОЛОК ВТОРОГО ЭТАЖА (мансарда)
Монтаж Пин Ап - вагонка, хвойные породы
Крепеж - гвозди, скобы, саморезы и т.д.
Транспортно-заготовительные работы
ОКНА
Установка окон - пластиковые белые, двухкамерный стеклопакет
Крепежные и сопутствующие элементы - пена, армированная лента и т.д.
Монтаж Пин Ап - деревянный массив 40х140 мм
Установка наличника внутреннего, простой формы - доска Пин Ап 20х140 мм
Установка наличника внешнего, простой Пин Ап - доска массив, 20х140 мм
Транспортно-заготовительные работы
ДВЕРЬ ВХОДНАЯ
Установка двери - металлическая с двумя контурами уплотнения и Пин Ап
Крепежные и сопутствующие элементы - пена, армированная лента и т.д.
Установка наличника внутреннего, простой формы - доска Пин Ап 20х140 мм
Установка наличника внешнего, простой формы - доска Пин Ап 20х140 мм
Транспортно-заготовительные работы
ДВЕРИ МЕЖКОМНАТНЫЕ
Установка двери - массив сосны филёнчатые, Пин Ап
Крепежные и сопутствующие элементы - пена, армированная лента и т.д.
Установка наличника внутреннего, простой формы - доска Пин Ап 20х140 мм
Установка наличника внешнего, простой формы - доска массив, 20х140 мм
Транспортно-заготовительные работы
МЕЖЭТАЖНАЯ ЛЕСТНИЦА
Деревянная лестница (короусы, Пин Ап без подступенников из строганной доски 50х200)
С квадратными балясинами Пин Ап мм, перила 50х100 мм
Вид П- или Г-образный в зависимости от проекта, без прокраски
Крепеж - гвозди, скобы, саморезы и т.д.
Транспортно-заготовительные работы
СИСТЕМА ЭЛЕКТРИЧЕСТВА
Открытая разводка (медные Пин Ап в кабель каналах (под дерево) с комплектующими
Установка розеток
Установка выключателей
Установка светильников
Установка электро щитка
Крепеж - гвозди, скобы, саморезы и т.д.
СИСТЕМА ОТОПЛЕНИЯ
Открытая однотрубная Пин Ап из полипропилена с комплектующими
Пин Ап алюминиевых радиаторов согласно объема помещений
Установка двухконтурного газового котла
Крепеж - гвозди, скобы, саморезы и т.д.
Транспортно-заготовительные работы
СИСТЕМА КАНАЛИЗАЦИИ
Открытая разводка труб Пин Ап из ПВХ труб с комплектующими
Крепеж - гвозди, скобы, саморезы и т.д.
Транспортно-заготовительные работы
СИСТЕМА ВОДОСНАБЖЕНИЯ
Открытая разводка труб холодного и горячего водоснабжения из полипропилена с Пин Ап
Крепеж - гвозди, скобы, саморезы и т.д.
Транспортно-заготовительные работы
СИСТЕМА ВЕНТИЛЯЦИИ
Открытая разводка вентиляции из с/у и кухни, ПВХ Пин Ап с комплектующими
Установка диффузоров
Монтажный комплект крепеж, герметик
Транспортно-заготовительные работы
Возможны любые изменения в комплектации
Часто задаваемые вопросы
Почему именно СВЧ вакуумная сушка?
СВЧ вакуумная сушка имеет несколько Пин Ап преимуществ:
Отделка сразу- Не нужно Пин Ап усадки, от 1 года до 3 лет
Прочность- Цельный массив дерева
Процент усадки- от 1 до 3% в зависимости от влажности
Минимум влаги- мы можем просушить Пин Ап до 6%
Можно ли Пин Ап перечень работ в комплектации дома?
Да, можно изменять перечень работ и используемых материалов. Так же можно как добавлять так и убирать работы в указанных комплектациях. Мы предлагаем гибкий подход к каждому проекту.
Можно ли вносить корректировки в Пин Ап
Да можно и даже нужно! Мы строим дома в 100% случаев по индивидуальному проекту. Каждый проект разрабатывается и корректируется согласно требованиям Заказчика и расположения на участке. Возможна корректировка дома по площади как в Пин Ап так и в большую сторону.
Почему стоит сушить древесину?
Качество дома, получаемое при Пин Ап сухого стенового материала, значительно выше:
Нет кручений, искривления, деформации
Минимальная усадка дома
Сокращенный срок Пин Ап (не нужно ждать от полугода до года на усадку)
Удобство и простота монтажных работ обеспечивается за счет небольшого веса материала и его стабильности
Пин Ап стоит выбрать СВЧ вакуумную сушку?
Это единственная технология сушки, которая действительно просушивает массивную древесину в короткий срок и качественно, до практически не достижимой влажности при любых других способах и Пин Ап камерной сушки дерева.
100% дезинфекция- СВЧ-волны эффективно уничтожают всех возможных вредителей, как на поверхности, так и внутри Пин Ап
Быстрая сушка- В несколько раз Пин Ап традиционных методов
Экологичность- Без химических средств и Пин Ап
Сколько времени занимает строительство?
Срок строительства зависит от комплектации и площади дома. В среднем, строительство под теплый контур Пин Ап 2-3 месяца. Полный цикл "под ключ" - 3-4 месяца. Использование сухой древесины значительно сокращает сроки строительства.
Похожие проекты домов
Проект ДДБ-150
Домокомплектпо запросу
Под кровлюпо запросу
Под теплый контурпо запросу
Дом с инженерными системамипо запросу
Проект ДДБ-158
Домокомплектпо запросу
Под кровлюпо запросу
Под теплый контурпо запросу
Дом с инженерными системамипо запросу
Проект ДДБ-139
Домокомплектпо запросу
Под кровлюпо запросу
Под теплый контурпо запросу
Дом с инженерными системамипо запросу
Проект ДДБ-137
Домокомплектпо запросу
Под кровлюпо запросу
Под теплый контурпо запросу
Дом с инженерными системамипо запросу
Проект ДДБ-153
Домокомплектпо запросу
Под кровлюпо запросу
Под теплый контурпо запросу
Дом с инженерными системамипо запросу
Проект ДДБ-180
Домокомплектпо запросу
Под кровлюпо запросу
Под теплый контурпо запросу
Дом с инженерными системамипо запросу
Проект ДДБ-141
Домокомплектпо запросу
Под кровлюпо запросу
Под теплый контурпо запросу
Дом с инженерными системамипо запросу
Проект ДДБ-152
Домокомплектпо запросу
Под кровлюпо запросу
Под теплый контурпо запросу
Дом с инженерными системамипо запросу



















