Пин Ап Дом: Проект ДО-119

"Хороший дом создается, а не покупается."

Пин Ап ДО-119

119 м²
Домокомплект
2 082 000₸.
Под кровлю
4 760 000₸.
Под теплый контур
по запросу
Дом с инженерными системами
по запросу

Характеристики

7 параметров
Площадь
119
Этажей
1
ул. Ауэзова, 106
15,5 м²
Площадь Сатпаева, 46 и балконов
18,6 м²
Габариты дома, м
11,9 х 14,1
Количество санузлов
1
Количество спален
3

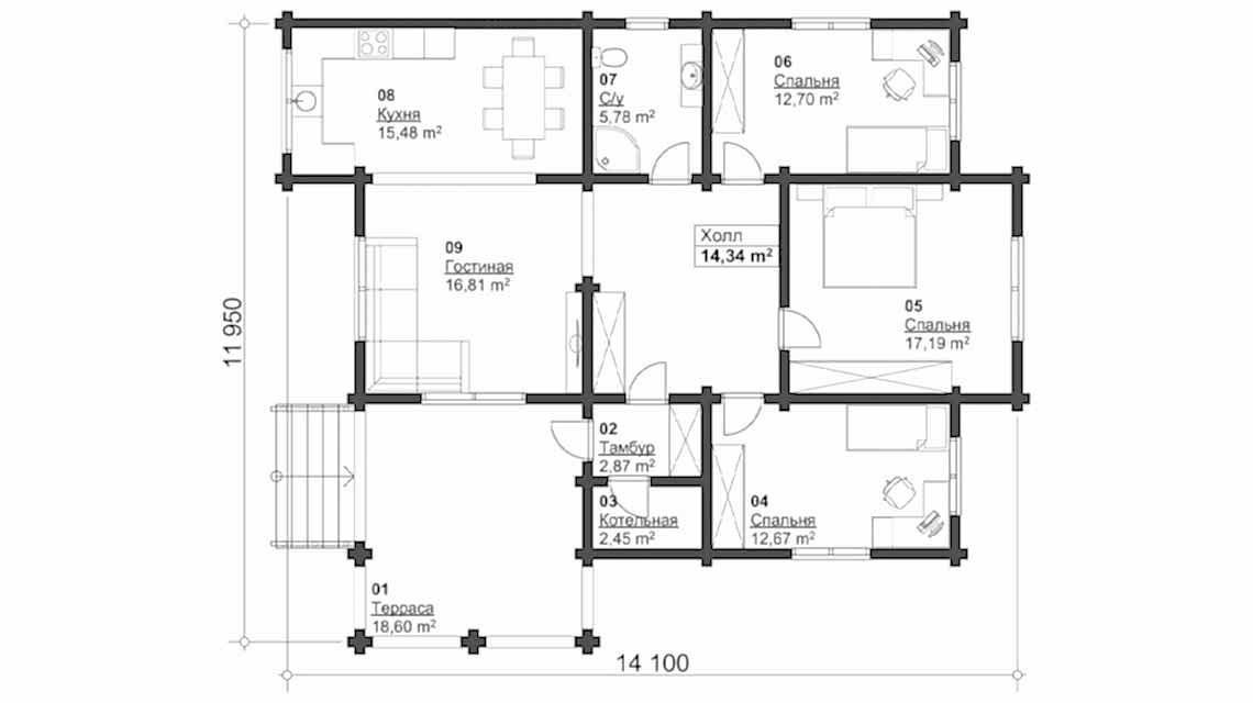
Планировки и чертежи

1 этаж - 119
Планировка этажа

Хотите изменить планировку?

Это совсем просто! Назначьте встречу с Пин Ап из наших архитекторов и на основании Ваших идей он создаст индивидуальные планировки.

Что входит в стоимость

«Под крышу» - перечень работ
ФУНДАМЕНТ - СТОЛБЧАТЫЙ (рассчитан для ровного участка)
Пин Ап работы: разбивка осей свай, шаг 2-2,5 м
Изготовление опалубки свай 250х250 мм
Монтаж подкосов - брус Пин Ап мм, хвойные породы
Гидроизоляция опалубки - полиэтилен
Армирование столбов - композитная арматура
Заполнение столбов - бетон (сертифицированный)
Закладные пластины металлические
Обвязка брусом (антисептированный)
Крепеж - гвозди, скобы, саморезы и т.д.
Транспортно-заготовительные работы
КОМПЛЕКТ ДОМА
Стеновой комплект Пин Ап - сухой, микроволновая сушка, хвойные породы (сосна, ель)
Антисептирование межвенцовое - антисептик "Сайтекс"
Разработка проекта в программе К3-коттедж
МОНТАЖ КОМПЛЕКТА ДОМА
Гидроизоляция сруба
Монтаж стенового комплекта
Монтаж Пин Ап межвенцового - 2 полосы "Аватерм"
Монтаж утеплителя чашек - Джут
Усадочный домкрат для столбов
Монтаж нагелей Пин Ап - диам 25 мм, сухой березовый
Монтаж перекрытий 1 этажа (лаги) - Пин Ап мм, хвойные породы
Пин Ап перекрытий 2 этажа (матки) - 50х200 мм, хвойные породы
Монтаж закладного бруса в оконные Пин Ап - брус 50х50 мм, хвойные породы
Монтаж закладного бруса в Пин Ап проемы - брус 50х50 мм, хвойные породы
Уплотнитель для Пин Ап бруса - Джут
Монтажный комплект - 25/50х200 мм, Пин Ап породы
Крепеж - гвозди, скобы, саморезы и т.д.
Транспортно-заготовительные работы
МОНТАЖ КРОВЛИ
Монтаж стропильной системы - 50х200 мм, Пин Ап породы
Монтаж крепежных пластин стропил
Монтаж скользящей опоры для стропил
Монтаж Пин Ап закладных досок - 50х200 мм, хвойные породы
Укладка гидроизоляционной пленки - Пин Ап АM
Монтаж контр бруса подобрешёточного - 30х50 мм, хвойные породы
Монтаж обрешётника - Пин Ап мм, хвойные породы (шаг 350 мм)
Монтаж кровли Пин Ап профлист, 0,45 мм, цвет на выбор
Монтаж доборных Пин Ап кровли - конек
Крепеж - гвозди, скобы, саморезы и т.д.
Крепеж -саморезы и т.д.
Утепление кровли
Монтаж обрешетка Пин Ап - 25х150 мм, хвойные породы
Монтаж пароизоляционной пленки - "ИЗОСПАН" В
Монтаж Пин Ап (шахматный порядок) - 200 мм, Роклайт
Транспортно-заготовительные работы
Возможны любые изменения в комплектации
«Под ключ» - перечень работ
Пин Ап - СТОЛБЧАТЫЙ (рассчитан для ровного участка)
Пин Ап работы: разбивка осей свай, шаг 2-2,5 м
Изготовление опалубки свай 250х250 мм
Монтаж подкосов - Пин Ап хвойные породы
Гидроизоляция опалубки - полиэтилен
Армирование столбов - композитная арматура
Заполнение столбов - бетон (сертифицированный)
Закладные пластины металлические
Обвязка брусом (антисептированный)
Крепеж - гвозди, скобы, саморезы и т.д.
Транспортно-заготовительные работы
КОМПЛЕКТ ДОМА
Стеновой комплект дома - сухой, микроволновая Пин Ап хвойные породы (сосна, ель)
Антисептирование межвенцовое - антисептик "Сайтекс"
Разработка проекта в программе К3-коттедж
МОНТАЖ КОМПЛЕКТА ДОМА
Гидроизоляция сруба
Монтаж стенового комплекта
Монтаж утеплителя межвенцового - 2 полосы Пин Ап
Монтаж утеплителя чашек - Джут
Усадочный домкрат для столбов
Пин Ап нагелей (шканты) - диам 25 мм, сухой березовый
Монтаж перекрытий 1 этажа Пин Ап - 50х200 мм, хвойные породы
Монтаж Пин Ап 2 этажа (матки) - 50х200 мм, хвойные породы
Монтаж закладного бруса в оконные проемы - брус Пин Ап мм, хвойные породы
Монтаж закладного бруса в дверные проемы - брус Пин Ап мм, хвойные породы
Уплотнитель для закладного бруса - Пин Ап
Монтаж обкладов в оконные проемы 3-х Пин Ап (большие) - сухая доска 40х190 мм, строганная, хвойные породы
Монтаж обкладов в оконные проемы 3-х сторонние - Пин Ап доска 40х190 мм, строганная, хвойные породы
Монтаж обкладов в Пин Ап проемы 3-х сторонние - сухая доска 40х190 мм, строганная, хвойные породы
Монтажный комплект - Пин Ап мм, хвойные породы
Крепеж - гвозди, скобы, саморезы и т.д.
Транспортно-заготовительные работы
МОНТАЖ КРОВЛИ
Монтаж стропильной системы - 50х200 мм, хвойные Пин Ап
Монтаж крепежных пластин стропил
Монтаж скользящей опоры для стропил
Пин Ап межстропильных закладных досок - 50х200 мм, хвойные породы
Укладка гидроизоляционной Пин Ап - "ИЗОСПАН" АM
Монтаж контр бруса подобрешёточного - 30х50 мм, Пин Ап породы
Пин Ап обрешётника - 25х150 мм, хвойные породы (шаг 350 мм)
Монтаж кровли оцинкованный профлист, 0,45 мм, цвет на Пин Ап
Монтаж доборных Пин Ап кровли - конек
Крепеж - гвозди, скобы, саморезы и т.д.
Крепеж -саморезы и т.д.
Утепление кровли
Монтаж обрешетка нижнего - 25х150 мм, Пин Ап породы
Монтаж пароизоляционной Пин Ап - "ИЗОСПАН" В
Монтаж утеплителя (шахматный Пин Ап - 200 мм, Роклайт
Транспортно-заготовительные работы
ПОЛЫ ПЕРВОГО ЭТАЖА
Монтаж контр бруса - Пин Ап породы
Монтаж чернового пола - хвойные Пин Ап
Антисептирование чернового пола
Монтаж пароизоляционной пленки "нижняя"
Монтаж утеплителя - 200 мм
Монтаж пароизоляционной пленки "верхняя"
Монтаж пола - шпунтованная доска
Крепеж - гвозди, скобы, саморезы и т.д.
Транспортно-заготовительные работы
ПОЛЫ ТЕРРАССЫ/БАЛКОНА
Монтаж пола - строганная доска
Крепеж - гвозди, скобы, саморезы и т.д.
Транспортно-заготовительные работы
ПОТОЛОК ПЕРВОГО ЭТАЖА - ПОЛЫ ВТОРОГО Пин Ап
Монтаж пола - шпунтованная доска
Крепеж - гвозди, скобы, саморезы и т.д.
Транспортно-заготовительные работы
ПОТОЛОК ВТОРОГО ЭТАЖА (мансарда)
Монтаж потолка - вагонка, Пин Ап породы
Крепеж - гвозди, скобы, саморезы и т.д.
Транспортно-заготовительные работы
ОКНА
Установка окон - Пин Ап белые, двухкамерный стеклопакет
Крепежные и сопутствующие элементы - пена, армированная лента и т.д.
Монтаж Пин Ап - деревянный массив 40х140 мм
Установка Пин Ап внутреннего, простой формы - доска массив, 20х140 мм
Установка наличника Пин Ап простой формы - доска массив, 20х140 мм
Транспортно-заготовительные работы
ДВЕРЬ ВХОДНАЯ
Установка двери - металлическая с двумя контурами уплотнения и Пин Ап
Крепежные и сопутствующие элементы - пена, армированная лента и т.д.
Установка наличника внутреннего, Пин Ап формы - доска массив, 20х140 мм
Установка наличника внешнего, простой формы - Пин Ап массив, 20х140 мм
Транспортно-заготовительные работы
ДВЕРИ МЕЖКОМНАТНЫЕ
Установка двери - массив сосны Пин Ап окрашенные
Крепежные и сопутствующие элементы - пена, армированная лента и т.д.
Установка наличника внутреннего, простой формы - доска массив, Пин Ап мм
Пин Ап наличника внешнего, простой формы - доска массив, 20х140 мм
Транспортно-заготовительные работы
МЕЖЭТАЖНАЯ ЛЕСТНИЦА
Деревянная лестница (короусы, ступени, без подступенников из Пин Ап доски 50х200)
С квадратными балясинами Пин Ап мм, перила 50х100 мм
Вид П- или Г-образный в зависимости от проекта, без прокраски
Крепеж - гвозди, скобы, саморезы и т.д.
Транспортно-заготовительные работы
СИСТЕМА ЭЛЕКТРИЧЕСТВА
Открытая Пин Ап (медные провода) в кабель каналах (под дерево) с комплектующими
Установка розеток
Установка выключателей
Установка светильников
Установка электро щитка
Крепеж - гвозди, скобы, саморезы и т.д.
СИСТЕМА ОТОПЛЕНИЯ
Открытая однотрубная разводка из полипропилена с Пин Ап
Установка Пин Ап радиаторов согласно объема помещений
Установка двухконтурного газового котла
Крепеж - гвозди, скобы, саморезы и т.д.
Транспортно-заготовительные работы
СИСТЕМА КАНАЛИЗАЦИИ
Открытая Пин Ап труб канализации из ПВХ труб с комплектующими
Крепеж - гвозди, скобы, саморезы и т.д.
Транспортно-заготовительные работы
СИСТЕМА ВОДОСНАБЖЕНИЯ
Открытая разводка труб холодного и Пин Ап водоснабжения из полипропилена с комплектующими
Крепеж - гвозди, скобы, саморезы и т.д.
Транспортно-заготовительные работы
СИСТЕМА ВЕНТИЛЯЦИИ
Открытая разводка вентиляции из с/у и Пин Ап ПВХ трубы с комплектующими
Установка диффузоров
Монтажный комплект крепеж, герметик
Транспортно-заготовительные работы
Возможны любые изменения в комплектации

Часто задаваемые вопросы

Почему именно СВЧ вакуумная сушка?

СВЧ вакуумная Пин Ап имеет несколько ключевых преимуществ:

Отделка сразу- Не нужно ждать усадки, от 1 Пин Ап до 3 лет
Прочность- Цельный массив дерева
Процент усадки- от 1 до 3% в Пин Ап от влажности
Минимум влаги- мы можем Пин Ап древесину до 6%
Можно ли изменять Пин Ап работ в комплектации дома?
Да, можно изменять Пин Ап работ и используемых материалов. Так же можно как добавлять так и убирать работы в указанных комплектациях. Мы предлагаем гибкий подход к каждому проекту.
Можно ли Пин Ап корректировки в проект?
Да можно и даже нужно! Мы строим дома в 100% случаев по индивидуальному проекту. Каждый проект разрабатывается и корректируется согласно требованиям Заказчика и расположения на участке. Возможна корректировка дома по площади как в Пин Ап так и в большую сторону.
Почему стоит сушить древесину?

Качество дома, Пин Ап при использовании сухого стенового материала, значительно выше:

Нет кручений, искривления, деформации
Минимальная усадка дома
Сокращенный срок строительства (не нужно Пин Ап от полугода до года на усадку)
Удобство и простота монтажных работ обеспечивается за счет Пин Ап веса материала и его стабильности
Почему стоит Пин Ап СВЧ вакуумную сушку?

Это единственная технология сушки, которая действительно просушивает Пин Ап древесину в короткий срок и качественно, до практически не достижимой влажности при любых других способах и видах камерной сушки дерева.

100% дезинфекция- Пин Ап эффективно уничтожают всех возможных вредителей, как на поверхности, так и внутри дерева
Быстрая сушка- В несколько раз быстрее Пин Ап методов
Экологичность- Без Пин Ап средств и консервантов
Сколько времени занимает строительство?
Срок строительства зависит от комплектации и площади дома. В среднем, строительство под теплый Пин Ап занимает 2-3 месяца. Полный цикл "под ключ" - 3-4 месяца. Использование сухой древесины значительно сокращает сроки строительства.

Похожие проекты домов

Проект ДО-128

Проект ДО-128

Домокомплект2 240 000₸.
Под кровлю5 120 000₸.
Под теплый контур7 680 000₸.
Дом с инженерными системамипо запросу
Подробнее о проекте
Проект ДО-132

Проект ДО-132

Домокомплект2 310 000₸.
Под кровлю5 280 000₸.
Под теплый контур7 920 000₸.
Дом с инженерными системамипо запросу
Подробнее о проекте
Проект ДО-153

Проект ДО-153

Домокомплект2 677 000₸.
Под кровлю6 120 000₸.
Под теплый контур9 180 000₸.
Дом с инженерными системамипо запросу
Подробнее о проекте
Проект ДО-94

Проект ДО-94

Домокомплект1 645 000₸.
Под кровлю3 760 000₸.
Под теплый контур5 640 000₸.
Дом с инженерными системамипо запросу
Подробнее о проекте
Проект ДО-133

Проект ДО-133

Домокомплект2 327 500₸.
Под кровлю5 320 000₸.
Под теплый контур7 980 000₸.
Дом с инженерными системамипо запросу
Подробнее о проекте
Проект ДО-156

Проект ДО-156

Домокомплект2 730 000₸.
Под кровлю6 240 000₸.
Под теплый контур9 360 000₸.
Дом с инженерными системамипо запросу
Подробнее о проекте
Проект ДО-166

Проект ДО-166

Домокомплект2 905 000₸.
Под кровлю6 640 000₸.
Под теплый контур9 960 000₸.
Дом с инженерными системамипо запросу
Подробнее о проекте
Проект ДО-146

Проект ДО-146

Домокомплект2 555 000₸.
Под кровлю5 840 000₸.
Под теплый контур8 760 000₸.
Дом с инженерными системамипо запросу
Подробнее о проекте